From the revitalized lobby to the efficient floor plates, THE CREST
blends a convenient location with conternporary office space to ease and enhance your workday from doorstep
to desktop
(About us)
One Place For Unrivaled Success
Developed by Avyanna Realty, THE CREST is a high-performance, corporate and retail building situated
on one of the most prime locations of the S G road. The location is the most connected and active
commercial hub in the Western Ahmedabad.
THE CREST is an architectural brilliance, where form
seamlessly fuses with function to create a corporate space that transcends the ordinary. Nestled
amidst the urban skyline, this magnificent structure stands out with its simplistic play of sleek
lines and contemporary design.
RERA NO. - CAA15851/160925/311229
18
Storey
G+1
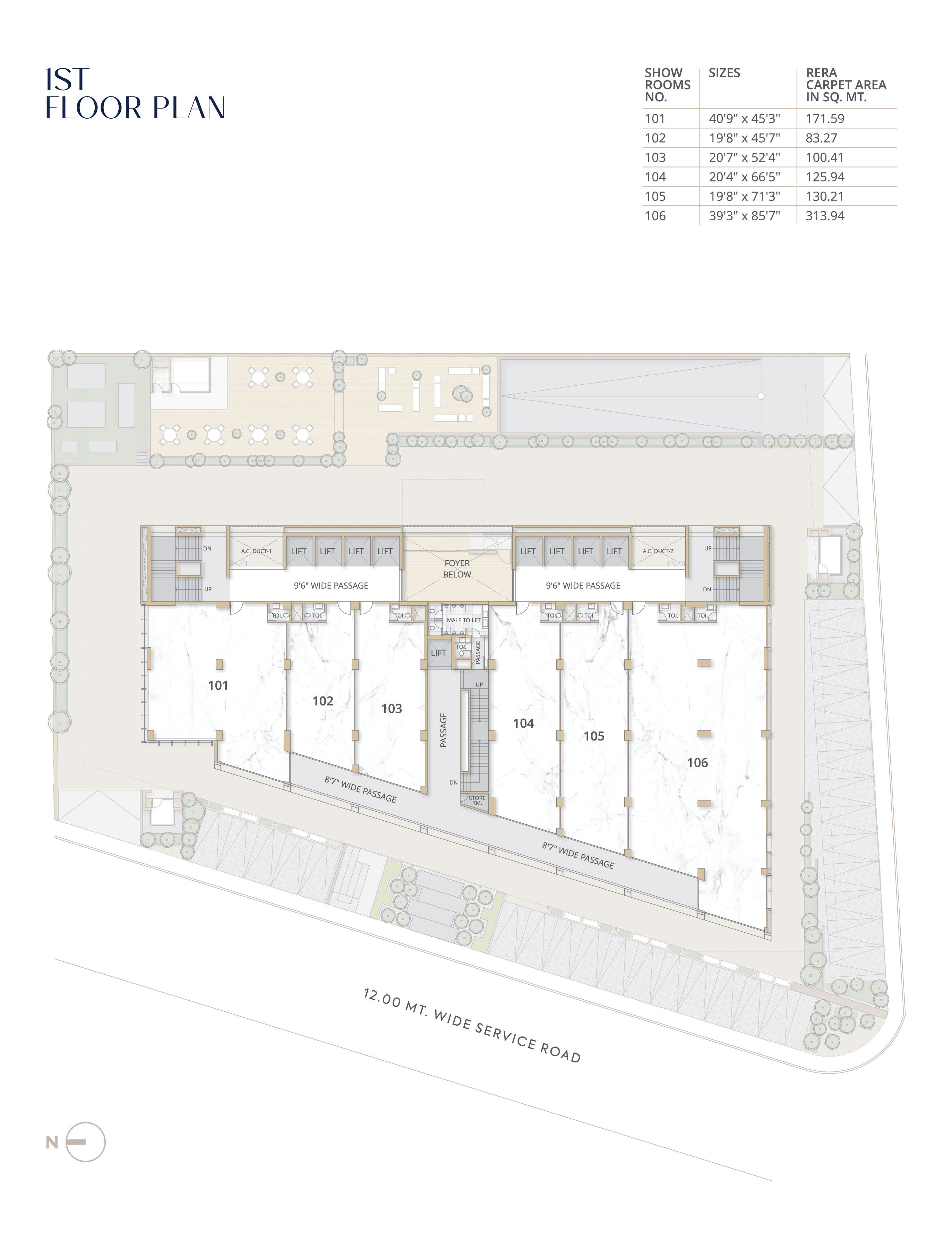
Retail
7,610
Sq.ft. Onw. Corporate offices
2,270
Sq.ft. Onw. Showrooms
Amenities
3 LEVEL BASEMENT PARKING
FIRE HYDRANT SYSTEM
DOUBLE HEIGHT FOYER
WAITING LOUNGE
CAFETERIA
8 HIGH SPEED ELEVATORS
Specifications
Structure
- Earthquake resistance RCC Frame Structure.
Masonry
- AAC Blocks/Bricks
Wall Finish
- Internal Wall - Smooth Plaster with Putty Finish
- External Wall - Double Coat mala Plaster with textured finish.
Bathrooms
- Sanitary ware - Wall hung water Closet. Counter/wall hung wash basin.
- Branded C.P. brass fittings.
Flooring and Dado Tiles
- Vitrified Tiles / Granite
Doors
- Main door - Polished natural door with quality lock set.
- Internal doors - Flush doors with SS hardware.
Electrification
- 3 Phase Concealed ISI mark Copper wiring with Standard accessories.
- All Sockets with Protective MCB.